Parámetros del Producto

Longitud*ancho*altura
11.5*3.3*3.2M

Área de construcción
38㎡

Número de ocupantes
2-4

Potencia nominal
12KW

Peso neto total
8.5T
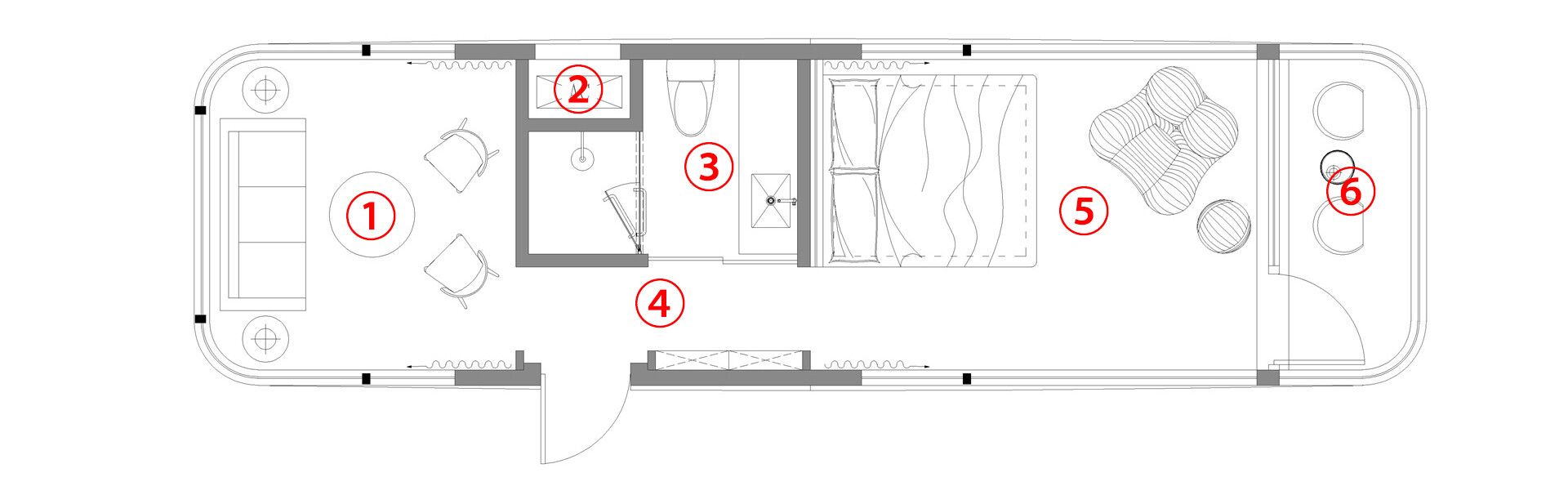
Introducción de la Función

1-Sala de estar/Cocina, 2-Sala de equipos, 3-Baño, 4-Pasillo, 5-Dormitorio, 6-Balcón exterior